For sale: Keerkringplein 4, 3582 PL Utrecht
For sale: Keerkringplein 4, 3582 PL Utrecht
For sale: Keerkringplein 4, 3582 PL Utrecht
C

Keerkringplein 4, 3582 PL Utrecht

€670,000

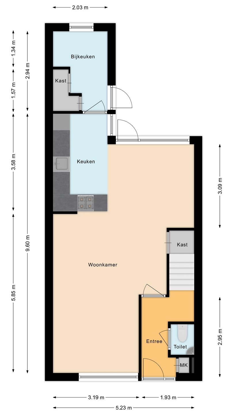
Description Keerkringplein 4

Are you looking for a home where you can enjoy plenty of living space in and around the house, but where all conceivable daily amenities are also nearby? Then be sure to come and take a look at this spacious single-family home on Keerkringplein in Utrecht. You will be living in a child-friendly n...

Features

Type of residence House, single-family house, terraced house
Construction period 1976
Offered since 04 August 2025

View Keerkringplein 4?

We are happy to schedule a viewing with you. During the viewing a broker will tell you everything you want to know.

Close

Recently viewed